Ranch Style House Plan - 3 Beds 2 Baths 1493 Sq/Ft Plan #427-4 - Houseplans.com
Search
REGISTER LOGIN SAVED No Saved Plans CART  Cart Empty
Don't lose your saved plans! Create an account to access your saves whenever you want. See our Terms & Conditions and Privacy Policy.
OR
Photographs may show modified designs.
Home  >  Style  >  Ranch

Ranch House Plan 427-4

Key Specs


Plan Sq Ft

1493
sq ft

Plan Bedrooms

3
Beds

Plan Bathrooms

2
Baths

Plan Floors

1
Floors

Plan Garages

2
Garages

Questions? Get Personalized Help
Select Plan Set Options
What's included?
$195.00
Additional Construction Sets$65.00/each

Additional hard copies of the plan (can be ordered at the time of purchase and within 90 days of the purchase date).

$495.00
$165.00
$295.00
$39.00
$165.00
Mirror Reversed Sets$0.00

Printed sets showing plan in reverse, text and dimensions will be backwards.

Subtotal
$855.00
Best Price Guaranteed

Or order by phone: 1-800-913-2350
Questions? Get Personalized Help
 

 
Hours:
Ready for Your Call 7 Days a Week
Every Day 7 am - 8:30 pm Eastern

See Terms & Conditions and Privacy Policy.

Thanks for your question.

We will be in touch shortly.

Wow!
Cost to Build Reports
$1.99 with Code
CTBFALL (Limit 1)
Our Cost to Build Report gives you a personalized estimate for building your home, based on your location, plan, and materials.

Residential Construction Guide

Learn Building Basics

This downloadable, 26-page guide is full of diagrams and details about plumbing, electrical, and more.

Key Specs


Plan Sq Ft

1493
sq ft

Plan Bedrooms

3
Beds

Plan Bathrooms

2
Baths

Plan Floors

1
Floors

Plan Garages

2
Garages

Plan Description


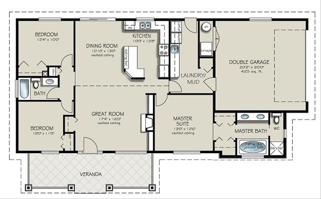
This ranch design floor plan is 1493 sq ft and has 3 bedrooms and 2 bathrooms.

This plan can be customized!

Tell us about your desired changes so we can prepare an estimate for the design service. Click the button to submit your request for pricing, or call 1-800-913-2350.

Floor Plans


Floor Plan - Main Floor

Reverse
houseplans LOGO

BUILDER Advantage Program

PRO BUILDERS

Join the club and save 5% on your first order.
PLUS download exclusive discounts and more.

LEARN MORE

Full Specs & Features


Basic Features

Bedrooms : 3
Baths : 2
Stories: 1
Garages: 2

Dimension

Depth : 39'
Height : 21'
Width : 65'

Area

Total : 1493 sq/ft
Main Floor : 1493 sq/ft
* Total Square Footage typically only includes conditioned space and does not include garages, porches, bonus rooms, or decks.

Ceiling

Main Ceiling : 9'

Roof

Primary Pitch : 8:12

Exterior Wall Framing

Framing : 2"x6"

What's included in this plan set


See a sample plan set
All plans are drawn at ¼” scale or larger and include :

  • Foundation Plan: Drawn to 1/4" scale, this page shows all necessary notations and dimensions including support columns, walls and excavated and unexcavated areas.
  • Exterior Elevations: A blueprint picture of all four sides showing exterior materials and measurements.
  • Floor Plan(s): Detailed plans, drawn to 1/4" scale for each level showing room dimensions, wall partitions, windows, etc. as well as the location of electrical outlets and switches.
  • Cross Section: A vertical cutaway view of the house from roof to foundation showing details of framing, construction, flooring and roofing. Interior Elevations: Detailed drawings of kitchen cabinet elevations and other elements as required.
* See important information before purchasing

Pricing


Plan Options

PDF Set

Best Value!
$855.00
PDF plan sets are best for fast electronic delivery and inexpensive local printing.

5 Copy Set

$1055.00
5 printed plan sets mailed to you.

8 Copy Set

$1205.00
8 printed plan sets mailed to you.

5 Copy and PDF Set

$1305.00
5 printed plan sets mailed to you plus PDF plan sets are best for fast electronic delivery and inexpensive local printing.

Eight Copy and PDF Set

$1530.00
8 printed plan sets mailed to you plus PDF plan sets are best for fast electronic delivery and inexpensive local printing.

PDF Unlimited Build

$1710.00
PDF plan sets are best for fast electronic delivery and inexpensive local printing.

CAD Single Build

$1805.00
For use by design professionals to make substantial changes to your house plan and inexpensive local printing.

CAD and PDF Set

$1880.00
For use by design professionals to make substantial changes to your house plan and inexpensive local printing plus PDF plan sets are best for fast electronic delivery and inexpensive local printing.

CAD Unlimited Build

$2555.00
For use by design professionals to make substantial changes to your house plan and inexpensive local printing.

CAD and PDF Set Unlimited Build

$2855.00
For use by design professionals to make substantial changes to your house plan and inexpensive local printing plus PDF plan sets are best for fast electronic delivery and inexpensive local printing.

Single Set

$905.00
One printed set for bidding purposes only. Not a legal building set for construction.

Foundation Options

Crawlspace

$0.00
Ideal for semi-sloped or level lot, home can be built off of grade, typically 18” - 48”.

Basement

$450.00
Ideal for level lot, lower level of home partially or fully underground.

Daylight Basement

$450.00
Ideal for sloping lot, lower level of home partially underground.

Slab

$450.00
Ideal for level lot, single layer concrete poured directly on grade.

*Options with a fee may take time to prepare. Please call to confirm.

Framing Options

Wood 2x6

$0.00
Wood 2x6 Exterior Walls

*Options with a fee may take time to prepare. Please call to confirm.

Additional Options

Right-Reading Reverse

$195.00
Choose this option to reverse your plans and to have the text and dimensions readable.

Additional Construction Sets

$65.00
Additional hard copies of the plan (can be ordered at the time of purchase and within 90 days of the purchase date).

Additional Use License

$495.00
Allows you to build one more home for each additional license purchased.

Audio Video Design

$165.00
Receive an overlay sheet with suggested placement of audio and video components.

Comprehensive Material List

$295.00
A complete list of building supplies needed to construct the infrastructure of your new house, plus an overlay of materials shown directly on your PDF (foundation to rooftop with interior and exterior materials), and a detailed, itemized door and window schedule showing all sizes and types. Please allow 5-7 Business Days for completion. Note, the Comprehensive list is only available with a PDF purchase. The Comprehensive list can be ordered no matter what additional plan options you have selected.

Construction Guide

$39.00
Educate yourself about basic building ideas with these four detailed diagrams that discuss electrical, plumbing, mechanical, and structural topics.

Lighting Design

$165.00
Receive an overlay sheet with suggested placement of lighting fixtures.

Mirror Reversed Sets

$0.00
A mirror-reversed set is a printed copy of your house, resulting in the same image you would see if you held the drawing up to a mirror. Everything, including the text, is backward in relation to the original design. These kinds of drawing are typically used to reorient an original plan more advantageously on a site, either because the homeowner prefers it that way or because of limitations of the site itself. Note: Mirror reverse sets are only available with a 5 copy or 8 copy set. With a Reproducible, PDF, or CAD set, you can print mirrored copies locally. In addition: 5 Copy set selected, should only allow 4 mirrored sets to be selected. 8 Copy set selected, should only allow 7 mirrored sets to be selected.

*Options with a fee may take time to prepare. Please call to confirm.

Unless you buy an “unlimited” plan set or a multi-use license you may only build one home from a set of plans. Please call to verify if you intend to build more than once. Plan licenses are non-transferable and cannot be resold.

We offer a 90% credit when you upgrade from a set, that is not for construction, to a 5-Copy set (or greater).

Meet the Designer

Simply Classic Designs

Simply Classic Designs - Houseplans.com

Browse Similar Plans

Need help? Let our friendly experts help you find the perfect plan!

Contact us now for a free consultation.

Coupon Codes