Colonial Style House Plan - 3 Beds 2.5 Baths 1855 Sq/Ft Plan #460-12 - Houseplans.com
Search
REGISTER LOGIN SAVED No Saved Plans CART  Cart Empty
Don't lose your saved plans! Create an account to access your saves whenever you want. See our Terms & Conditions and Privacy Policy.
OR
Plan 460-12
Photographs may show modified designs.
Home  >  Style  >  Colonial

Colonial House Plan 460-12

Key Specs


Plan Sq Ft

1855
sq ft

Plan Bedrooms

3
Beds

Plan Bathrooms

2.5
Baths

Plan Floors

2
Floors

Plan Garages

0
Garages

Questions? Get Personalized Help
Select Plan Set Options
What's included?
$400.00
Mirror Reversed Sets$250.00

Printed sets showing plan in reverse, text and dimensions will be backwards.

Subtotal
$828.00
Best Price Guaranteed

Or order by phone: 1-800-913-2350
Questions? Get Personalized Help
 

 
Hours:
Ready for Your Call 7 Days a Week
Every Day 7 am - 8:30 pm Eastern

See Terms & Conditions and Privacy Policy.

Thanks for your question.

We will be in touch shortly.

Wow!
Cost to Build Reports
$1.99 with Code
CTBFALL (Limit 1)
Our Cost to Build Report gives you a personalized estimate for building your home, based on your location, plan, and materials.

Residential Construction Guide

Learn Building Basics

This downloadable, 26-page guide is full of diagrams and details about plumbing, electrical, and more.

Key Specs


Plan Sq Ft

1855
sq ft

Plan Bedrooms

3
Beds

Plan Bathrooms

2.5
Baths

Plan Floors

2
Floors

Plan Garages

0
Garages

Plan Description


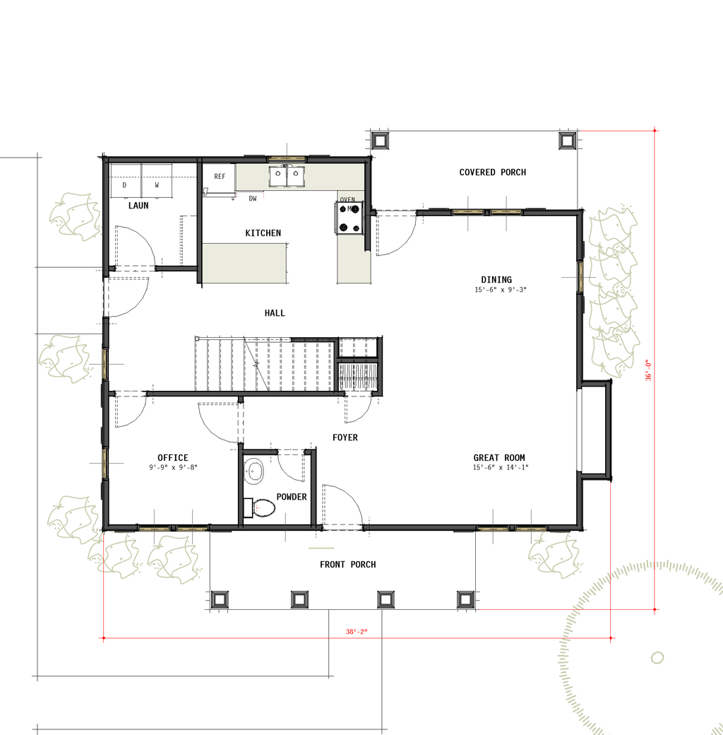
Here is a design for those looking for an attractive and well-appointed Colonial Revival with a full-featured, modern open and efficient plan. Most 2-story designs this size have to sacrifice a lot to achieve what this plan offers: A 360-degree kitchen with eat-in island, dining room, full size laundry room, downstairs office and powder room, a spacious loft for learning and play, and a luxurious primary bath with double vanities and an oversize walk-in closet. That primary suite can be outfitted with either a bathtub or walk-in shower as you choose. Homeschooling families will love the dedicated spaces for learning and working. Outside, there are both front and rear porches for entertaining and relaxing. The back porch can be easily enclosed as a screen porch at your pleasure. This plan is suitable for either a corner or a mid-block lot. With the future in mind, there are a variety of options for adding an enclosed garage or carport.

This plan can be customized!

Tell us about your desired changes so we can prepare an estimate for the design service. Click the button to submit your request for pricing, or call 1-800-913-2350.

Floor Plans


Floor Plan - Main Floor

Reverse
houseplans LOGO

BUILDER Advantage Program

PRO BUILDERS

Join the club and save 5% on your first order.
PLUS download exclusive discounts and more.

LEARN MORE

Floor Plan - Upper Floor

Reverse

Full Specs & Features


Basic Features

Bedrooms : 3
Baths : 2.5
Stories: 2
Garages: 0

Dimension

Depth : 28'
Height : 27' 2"
Width : 38' 2"

Area

Total : 1855 sq/ft
Basement : 929 sq/ft
Garage : 545 sq/ft
Main Floor : 960 sq/ft
Porch : 184 sq/ft
Upper Floor : 895 sq/ft
* Total Square Footage typically only includes conditioned space and does not include garages, porches, bonus rooms, or decks.

Ceiling

Main Ceiling : 8'
Upper Ceiling Ft : 8'

Roof

Primary Pitch : 8/12
Roof Framing : WOOD
Secondary Pitch : 4/12

Exterior Wall Framing

Exterior Wall Finish : SIDING
Framing : WOOD
Insulation : VARIES REGIONALLY

Bedroom Features

Upstairs Bedrooms
Upstairs Master Bedrooms
Walk In Closet

Kitchen Features

Eating Bar
Kitchen Island

Additional Room Features

Den Office Study Computer
Loft
Main Floor Laundry

Lot Characteristics

Suited For Corner Lot
Suited For View Lot

Outdoor Spaces

Covered Front Porch
Covered Rear Porch

More

Additional Half Bath
Economical To Build

Energy Efficient Features

Energy Efficient Design

What's included in this plan set


See a sample plan set

All plans are drawn at ¼” scale or larger and include :

  • Foundation Plan: This page shows all necessary notations and dimensions including support columns, walls, and excavated/unexcavated areas.
  • Exterior Elevations: Views of the home from all four sides showing exterior materials and measurements.
  • Floor Plan(s): Detailed plans for each level showing room dimensions, wall partitions, windows and doors, etc.
  • Cross Section: A slice of the home from roof to foundation, showing important details like stairs and wall construction.
  • Overhead Roof Plan(s): A view of the home from above showing roof pitch, peaks, valleys, and other details.
  • Construction Notes and Details: Shows the builder how things come together, like walls, the chimney, insulation, and more.
* See important information before purchasing

Pricing


Plan Options

PDF Set

Best Value!
$828.00
PDF plan sets are best for fast electronic delivery and inexpensive local printing.

Foundation Options

Basement

$0.00
Ideal for level lot, lower level of home partially or fully underground.

Slab

$0.00
Ideal for level lot, single layer concrete poured directly on grade.

*Options with a fee may take time to prepare. Please call to confirm.

Framing Options

Wood 2x4

$0.00
Wood 2x4 Exterior Walls

*Options with a fee may take time to prepare. Please call to confirm.

Additional Options

Right-Reading Reverse

$400.00
Choose this option to reverse your plans and to have the text and dimensions readable.

Mirror Reversed Sets

$250.00
A mirror-reversed set is a printed copy of your house, resulting in the same image you would see if you held the drawing up to a mirror. Everything, including the text, is backward in relation to the original design. These kinds of drawing are typically used to reorient an original plan more advantageously on a site, either because the homeowner prefers it that way or because of limitations of the site itself. Note: Mirror reverse sets are only available with a 5 copy or 8 copy set. With a Reproducible, PDF, or CAD set, you can print mirrored copies locally. In addition: 5 Copy set selected, should only allow 4 mirrored sets to be selected. 8 Copy set selected, should only allow 7 mirrored sets to be selected.

*Options with a fee may take time to prepare. Please call to confirm.

Unless you buy an “unlimited” plan set or a multi-use license you may only build one home from a set of plans. Please call to verify if you intend to build more than once. Plan licenses are non-transferable and cannot be resold.

Meet the Designer

Daniel E. Bush

Daniel E. Bush - Houseplans.com
“It's just not practical to invest in a new house that can't adapt to your family's changing needs.” Dan's more than 20 years of experience as an architectural designer began with student work at Georgia Tech. He is inspired by some of the major design figures of the 1940s and 50s - such as architects Richard Neutra and J. R. Davidson, and developer Joseph Eichler - who knew how to develop plans that were efficient and spacious. "These same principles are even more important in today's homes," he says. "My plans expand interior space by extending multiple views to the outside and by taking advantage of diagonal vistas. They target multi-generational families, the growing need for multiple home offices, and include traditional and modern designs for primary and secondary homes."

Browse Similar Plans

Need help? Let our friendly experts help you find the perfect plan!

Contact us now for a free consultation.

Coupon Codes