Farmhouse Style House Plan - 3 Beds 3.5 Baths 3374 Sq/Ft Plan #888-15 - Houseplans.com
Search
REGISTER LOGIN SAVED No Saved Plans CART  Cart Empty
Don't lose your saved plans! Create an account to access your saves whenever you want. See our Terms & Conditions and Privacy Policy.
OR
Home  >  Style  >  Farmhouse

Farmhouse House Plan 888-15

Key Specs


Plan Sq Ft

3374
sq ft

Plan Bedrooms

3
Beds

Plan Bathrooms

3.5
Baths

Plan Floors

2
Floors

Plan Garages

0
Garages

Questions? Get Personalized Help
Select Plan Set Options
What's included?
$150.00
Additional Construction Sets$75.00/each

Additional hard copies of the plan (can be ordered at the time of purchase and within 90 days of the purchase date).

$100.00
$395.00
$39.00
$150.00
Subtotal
$1200.00
Best Price Guaranteed

Or order by phone: 1-800-913-2350
Questions? Get Personalized Help
 

 
Hours:
Ready for Your Call 7 Days a Week
Every Day 7 am - 8:30 pm Eastern

See Terms & Conditions and Privacy Policy.

Thanks for your question.

We will be in touch shortly.

Wow!
Cost to Build Reports
$1.99 with Code
CTBFALL (Limit 1)
Our Cost to Build Report gives you a personalized estimate for building your home, based on your location, plan, and materials.

Residential Construction Guide

Learn Building Basics

This downloadable, 26-page guide is full of diagrams and details about plumbing, electrical, and more.

Key Specs


Plan Sq Ft

3374
sq ft

Plan Bedrooms

3
Beds

Plan Bathrooms

3.5
Baths

Plan Floors

2
Floors

Plan Garages

0
Garages

Plan Description


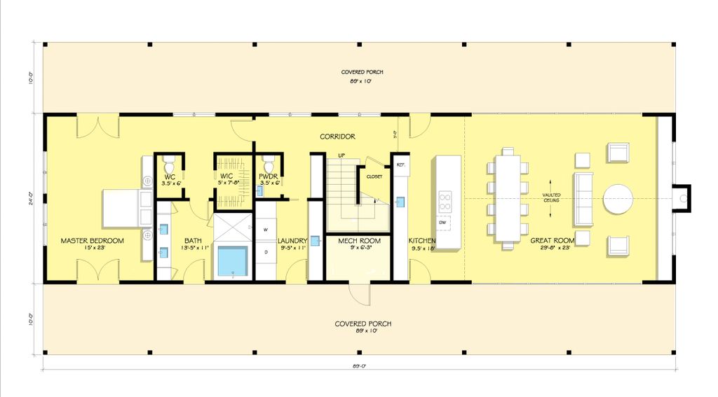
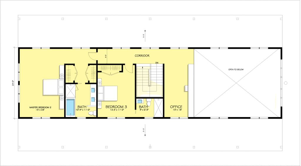
Look at that soaring ceiling! This 2 story modern farmhouse plan brings all the drama but also keeps it simple. Each bedroom is a suite, with one of them on the main floor and the other two upstairs. You’ll also enjoy the open floor plan, cooktop kitchen island, and the spacious laundry room. Get work done in the private home office. Check out those big porches!

This plan can be customized!

Tell us about your desired changes so we can prepare an estimate for the design service. Click the button to submit your request for pricing, or call 1-800-913-2350.

Floor Plans


Floor Plan - Main Floor

Reverse
houseplans LOGO

BUILDER Advantage Program

PRO BUILDERS

Join the club and save 5% on your first order.
PLUS download exclusive discounts and more.

LEARN MORE

Floor Plan - Upper Floor

Reverse

Full Specs & Features


Basic Features

Bedrooms : 3
Baths : 3.5
Stories: 2
Garages: 0

Dimension

Depth : 44'
Height : 28' 8"
Width : 89' 10"

Area

Total : 3374 sq/ft
First Floor: 2071 sq/ft height 10'
Second Floor: 1303 sq/ft height 9'
* Total Square Footage typically only includes conditioned space and does not include garages, porches, bonus rooms, or decks.

Ceiling

Main Ceiling : 10'
Upper Ceiling Ft : 9'

Roof

Primary Pitch : 8:12
Roof Framing : Truss
Roof Type : Metal
Secondary Pitch : 2:12

Exterior Wall Framing

Exterior Wall Finish : Siding
Framing : 2x6
Insulation : R31

Bedroom Features

2 Master Suites
Main Floor Master Bedroom
Upstairs Bedrooms
Upstairs Master Bedrooms
Walk In Closet

Additional Room Features

Den Office Study Computer
Great Room Living Room
Main Floor Laundry

Lot Characteristics

Suited For View Lot

Outdoor Spaces

Covered Front Porch
Covered Rear Porch

What's included in this plan set


See a sample plan set
Plans are typically drawn to ¼” scale and include:
  • Cover Sheet: Drawing index, designer contact info, plan name/number, legal disclaimers.
  • Foundation Plan(s): This page shows all necessary notations and dimensions including footings, support columns, walls, and excavated/unexcavated areas.
  • Floor Plan(s): Detailed plans for each level showing room dimensions, wall partitions, windows and doors, fixture locations, and ceiling treatments.
  • Exterior Elevations: Views of the home from all four sides showing exterior materials, roof slope, ridge heights, siding and trim notes.
  • Overhead Roof Plan(s): A view of the home from above showing roof pitch, peaks, valleys, and other details.
  • Cross Section(s): A slice of the home from roof to foundation, showing relationships between floors, roof, and foundation.
  • Construction Notes and Detail(s): Shows basic parts and assemblies recommended for the home so the builder can see how things come together.
* See important information before purchasing

Pricing


Plan Options

PDF Set

Best Value!
$1200.00
PDF plan sets are best for fast electronic delivery and inexpensive local printing.

5 Copy Set

$1350.00
5 printed plan sets mailed to you.

CAD Set

$1650.00
For use by design professionals to make substantial changes to your house plan and inexpensive local printing.

5 Copy and PDF Set

$1725.00
5 printed plan sets mailed to you plus PDF plan sets are best for fast electronic delivery and inexpensive local printing.

Study Set

$900.00
One electronic set for bidding purposes only. Not a legal building set for construction.

Single Set

$1200.00
One printed set for bidding purposes only. Not a legal building set for construction.

Foundation Options

Slab

$0.00
Ideal for level lot, single layer concrete poured directly on grade.

Basement

$250.00
Ideal for level lot, lower level of home partially or fully underground.

Crawlspace

$250.00
Ideal for semi-sloped or level lot, home can be built off of grade, typically 18” - 48”.

*Options with a fee may take time to prepare. Please call to confirm.

Additional Options

Right-Reading Reverse

$150.00
Choose this option to reverse your plans and to have the text and dimensions readable.

Additional Construction Sets

$75.00
Additional hard copies of the plan (can be ordered at the time of purchase and within 90 days of the purchase date).

Audio Video Design

$100.00
Receive an overlay sheet with suggested placement of audio and video components.

Comprehensive Material List

$395.00
A complete list of building supplies needed to construct the infrastructure of your new house, plus an overlay of materials shown directly on your PDF (foundation to rooftop with interior and exterior materials), and a detailed, itemized door and window schedule showing all sizes and types. Please allow 5-7 Business Days for completion. Note, the Comprehensive list is only available with a PDF purchase. The Comprehensive list can be ordered no matter what additional plan options you have selected.

Construction Guide

$39.00
Educate yourself about basic building ideas with these four detailed diagrams that discuss electrical, plumbing, mechanical, and structural topics.

Material List

$150.00
A spreadsheet of building supplies needed to construct the infrastructure of your new house. Please note materials lists will not reflect add-ons such as alternate foundation and framing options.

*Options with a fee may take time to prepare. Please call to confirm.

Unless you buy an “unlimited” plan set or a multi-use license you may only build one home from a set of plans. Please call to verify if you intend to build more than once. Plan licenses are non-transferable and cannot be resold.

We offer a 90% credit when you upgrade from a set, that is not for construction, to a 5-Copy set (or greater).

Meet the Designer

Nicholas Lee

Nicholas Lee - Houseplans.com
“ Design should be accessible to everyone. It's not only how something is designed, but how it's delivered -- i. e. the process -- that's important. I'm excited to be part of Houseplans' growing collection of architects and designers who are making high quality professional home design affordable and available to more people through ready-made plans. ” Nicholas Lee, AIA is an architect. He designed our exclusive Plans 508-1 and 508-2, both of which have been constructed. A graduate of the University of Oregon architecture program, Nick is also an artist, lighting designer, and trombone player.

Other Plans By This Designer

See all plans by
Nicholas Lee

Need help? Let our friendly experts help you find the perfect plan!

Contact us now for a free consultation.

Coupon Codes